欢迎来到广东鑫邦活性炭生产厂家!本公司主营各种材质规格的华体会游戏主页 、柱状活性炭、颗粒活性炭、废气处理活性炭等产品。

免费咨询热线
136-1277-7675活性炭是一种具有微孔和超微孔结构的高效吸附材料,具有很强的物理吸附和化学吸附能力。这种特性使活性炭成为处理有机废气中有机物污染物的理想选择之一。
有机废气中的有机物质通常是气态或挥发性液体,这些物质难以通过传统的处理方法进行有效的去除。但是,活性炭的微孔和超微孔结构能够吸附这些有机物质,从而将其从废气中去除。
此外,活性炭还可以通过化学反应与有机物质发生作用,将其转化为无害的物质,进一步提高了废气处理的效率。
活性炭不仅具有很强的吸附能力,还可以通过化学反应将有机物质转化为无害的物质。因此,活性炭是处理有机废气中有机物污染物的优秀选择。

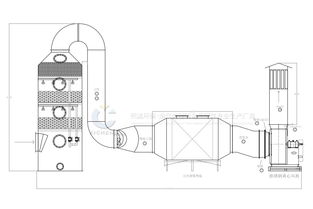
废气活性炭吸附装置是一种用于净化废气的设备,其工作原理是利用活性炭的吸附作用将废气中的有害物质吸附并去除。
废气活性炭吸附装置由活性炭床和进出气口组成。先将废气通过进气口送入活性炭床内,在经过床层内的活性炭过滤吸附后,废气传输到出气口再排放出去。
活性炭是一种多孔、高表面积、具有极强吸附能力的材料。在其表面上存在着很多活性吸附中心,可以吸附废气中的有机物、挥发性物质、异味等有害污染物,从而有效净化废气。
废气活性炭吸附装置适用于多种工业排放废气的处理,比如印染、化工、制药、电子等行业。废气净化效果好,能够达到国家标准排放要求。同时,由于活性炭可以进行再生利用,这也大大降低了运行成本,提高了设备的经济性和环保性。

活性炭吸附有机废气的原理是利用活性炭的特殊孔结构和化学性质。活性炭是一种具有高度孔隙率和表面积的吸附剂,可以吸附多种气体和液体中的有害物质,包括有机废气。
有机废气是指由含有碳类物质的化学反应或燃烧过程中排放的气体。有机废气中含有的有害物质如苯、甲醛、气味等对人体和环境都会造成危害。而活性炭的微孔和介孔结构可以提供充分的吸附表面,吸附有机废气中的有毒有害成分。
活性炭吸附有机废气的机理是物理吸附和化学吸附。物理吸附是指有机废气中分子与活性炭表面的弱作用力,如范德华力和静电力等,占据巨大的比重。化学吸附是指有机分子与活性炭表面的化学键结合,一般为氧化还原反应和化学配位反应等。
活性炭吸附有机废气是一种简便、有效的处理方法,广泛应用于化工、印刷、涂料等领域。但需要注意的是,活性炭饱和或吸附效率下降时,需要更换或再生活性炭并进行处理。

活性炭是一种具有很强吸附性能的材料,因此在许多领域都被广泛应用,如水处理、空气净化、医药等。但是,活性炭吸附效率并不是固定的,具体取决于多种因素。
首先是活性炭本身的质量和性质,比如表面积、孔径大小、化学组成等。表面积越大,孔径越小,对某些物质的吸附效率会更高。此外,不同的活性炭吸附不同的物质,因此在应用时需要选择适合的活性炭。
其次是被吸附物质的种类和浓度。不同的物质对活性炭的吸附效率不同,一些难以吸附的物质可能需要高质量的活性炭才能有效去除。同时,被处理物质的浓度也会影响吸附效率,浓度越高,吸附效率越低。
总体来说,活性炭吸附效率一般可以达到70%以上。但需要注意的是,活性炭的吸附效率受多种因素影响,未必能对所有物质产生同样的效果,因此在应用前需要进行实际测试和评估。
广东鑫邦活性炭有限公司致力专注于柱状活性炭、颗粒活性炭、粉状活性炭、华体会游戏主页 生产与批发;广泛应用在:垃圾焚烧厂、黄金提取、工业废水处理、污水处理、废气处理、空气净化、喷漆烤漆房等Powered by EyouCmsCopyright © 2002-2021 HTH电竞官方下载 版权所有 粤ICP备2021087261号