欢迎来到广东鑫邦活性炭生产厂家!本公司主营各种材质规格的华体会游戏主页 、柱状活性炭、颗粒活性炭、废气处理活性炭等产品。

免费咨询热线
136-1277-7675活性炭污水处理市场正在经历快速增长,预计在未来几年内将继续保持强劲的增长势头。活性炭是一种高效的处理污水的材料,可用于去除水中的化学物质、病菌和气味。因此,它在城市污水处理厂、工业废水处理厂和个人家庭污水处理等领域中都有广泛的应用。
当前,随着环保意识的提高和政府对环境保护的投入增加,活性炭污水处理市场正面临着前所未有的机遇。尤其是在发展中国家,由于水环境和污水处理技术不足,活性炭污水处理市场的潜力更加巨大。
然而,由于活性炭污水处理技术的门槛较高,市场上存在着一定的竞争局面。此外,活性炭成本较高也是制约其应用范围扩大的一个因素。虽然如此,随着技术的进步和成本的下降,活性炭污水处理市场的前景依然十分广阔,值得关注。

活性炭固废处理是一项重要的环保工作,通过对固废中的有害物质进行吸附和分解,将其转化成无害物质,以达到减少环境污染和保护生态环境的目的。对于活性炭固废处理的价格问题,主要会受到以下几个方面的影响。
固废的来源和污染程度是决定处理价格的重要因素。不同来源的固废材料,其污染程度和组成成分都存在差异,需要采用不同的处理方式,因此价格也有所不同。此外,处理收费还将受到固废处理厂的地理位置和操作费用等因素的影响。
不同固废处理厂的价格也会存在差异。由于每个固废处理厂的运营成本、管理费用、设备工艺等都不同,因此价格也可能不同。因此,在选择固废处理厂时,需要根据实际情况进行比较。
综上所述,活性炭固废处理的价格不是固定的,而是会受到多方面的因素影响,如固废的来源、污染程度、处理厂的地理位置和操作费用等。因此,在实际操作中,需要根据实际情况进行比较,选择合适的固废处理厂,以确保价格合理、处理效果好。

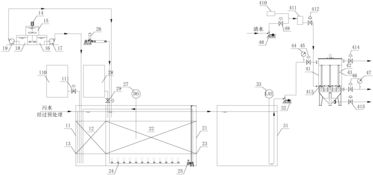
活性炭是一种具有很高吸附能力的材料,可以用于处理废水中的有害物质。活性炭处理废水的工艺流程主要分为三个步骤:预处理、吸附和再生。
将废水进行预处理。这一步主要是让废水中的杂质和颗粒物等沉淀或过滤掉,以防止这些物质附着在活性炭上,阻碍吸附效果。
然后,将预处理后的废水通过活性炭床。废水中的有害物质会被活性炭吸附,形成了一个吸附层。随着废水的流动,吸附层不断积累,直到吸附层饱和时需要将活性炭床中的活性炭更换。
进行再生处理。将饱和的活性炭从床中取出,经过高温高压或化学方法再生,恢复吸附能力。再生后的活性炭可以被重新用于处理废水,形成循环使用。
活性炭处理废水的工艺流程可分为预处理、吸附和再生三个步骤。这种技术能够有效地处理废水并净化环境,受到越来越多的关注和应用。

活性炭是一种具有很强吸附能力的材料,广泛应用于污水处理领域。它通过吸附污染物质,从而减少水体中的污染物质含量,达到净化水体的目的。
在污水处理过程中,活性炭的主要作用是去除水中难以处理的有机物质和一些微量污染物,如重金属、农药等。它的吸附能力非常强,可以有效地去除水中的异色、恶臭和有毒有害物质。此外,活性炭还可以在水中形成微生物的生长环境,促进水中生物的繁殖,从而在水体中增加生态平衡。
活性炭还有一些其他的应用,例如到了工业上,活性炭也可以用来净化空气,去除有害气体和异味。在医药制造工业方面,活性炭常用于制备和分离纯化某些药品。
活性炭在污水处理中的应用非常广泛,是一种非常有价值的环保材料。它的优势在于能够去除水中的各种有害物质,使用方便,效果显著。随着社会环境的变化,活性炭在污水处理方面的应用将得到更广泛的推广。
广东鑫邦活性炭有限公司致力专注于柱状活性炭、颗粒活性炭、粉状活性炭、华体会游戏主页 生产与批发;广泛应用在:垃圾焚烧厂、黄金提取、工业废水处理、污水处理、废气处理、空气净化、喷漆烤漆房等Powered by EyouCmsCopyright © 2002-2021 HTH电竞官方下载 版权所有 粤ICP备2021087261号