欢迎来到广东鑫邦活性炭生产厂家!本公司主营各种材质规格的华体会游戏主页 、柱状活性炭、颗粒活性炭、废气处理活性炭等产品。

免费咨询热线
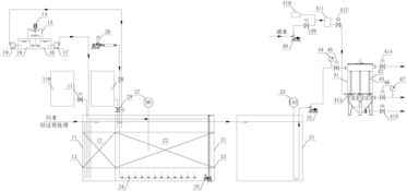
136-1277-7675珠海活性炭过滤装置设备是一种用于净化空气和水源的重要设备。活性炭是一种具有高度吸附能力的材料,可以有效去除水中的有机物、重金属和有害气体,使水变得更清洁、更安全。在空气净化方面,活性炭能够吸附空气中的有害气体和异味,如甲醛、苯系物质和二甲苯等,使空气更加清新和健康。
珠海活性炭过滤装置设备在设计上注重了使用的便捷性和效果的持久性。它由活性炭滤料和过滤器两部分组成,通过活性炭滤料的吸附作用,将水中的杂质和有害物质去除,提供干净的饮用水;在空气净化方面,活性炭过滤装置设备通过循环排气的方式,将空气中的有害物质过滤掉,同时还具有除尘功能,能有效地改善室内空气质量。
珠海活性炭过滤装置设备广泛应用于家庭、工业和医疗领域。在家庭中,它可以用于净化自来水,使水更适合饮用和烹饪;在工业领域,它可以用于处理废水和废气,有效降低环境污染;在医疗领域,它可以用于净化手术室和病房内的空气,保证病人的健康和安全。
总而言之,珠海活性炭过滤装置设备是一种高效、便捷的净化设备,它能够去除空气和水源中的有害物质,提供清洁、健康的环境。它的广泛应用在各个领域,为人们的生活带来了很大的便利和安全保障。

珠海活性炭过滤装置设备有限公司成立于2005年,是一家致力于活性炭过滤装置的研发、生产和销售的企业。公司总部位于广东珠海,拥有现代化的生产工厂和先进的生产设备。
作为活性炭过滤装置行业的领先企业,珠海活性炭过滤装置设备有限公司拥有一支专业高效的研发团队和技术人员,持续进行技术创新和产品优化,不断提升产品的品质和性能。公司产品广泛应用于水处理、空气净化、废气处理等领域,赢得了广大客户的认可和信赖。
珠海活性炭过滤装置设备有限公司以“品质源于细节,服务决定成败”为经营理念,不断加强质量管理和服务意识,严格按照ISO9001国际质量管理体系进行生产和管理,确保产品质量的稳定和可靠性。公司积极响应国家的环保政策,推动低碳经济发展,致力于为客户提供绿色、环保的产品解决方案。
在市场竞争激烈的环境中,珠海活性炭过滤装置设备有限公司通过持续创新、技术进步和优质服务赢得了良好的市场声誉和业绩。公司始终坚持“诚信、合作、共赢”的合作原则,与客户建立了良好的合作关系,实现了互利共赢的局面。
珠海活性炭过滤装置设备有限公司将继续秉持“创新、品质、服务”的发展理念,持续推动行业的发展,为客户提供更加优质的产品和服务,成为活性炭过滤装置领域的领军企业。

珠海活性炭过滤装置设备生产厂家是一家专业从事活性炭过滤装置设备的生产和销售的企业。该公司拥有先进的生产设备和专业的技术团队,致力于为客户提供高质量的产品和优质的服务。
活性炭过滤装置设备在水处理、空气净化和工业生产等领域具有广泛的应用。公司秉承“品质第一、用户至上”的经营理念,将产品质量放在首位。在生产过程中,严格控制每一个环节,保证产品的稳定性和可靠性。
公司生产的活性炭过滤装置设备具有过滤效率高、寿命长、操作简便等优点。产品按照国际标准生产,通过了相关的认证测试,以确保产品在市场上的竞争力和可靠性。
珠海活性炭过滤装置设备生产厂家注重产品的研发创新和技术的改进。公司拥有一支高素质的技术团队,不断开展科学研究和技术攻关,为客户提供更多更好的解决方案。
同时,公司还注重售后服务的质量。无论产品出现任何问题,公司都将及时响应并提供相应的解决方案,确保客户得到及时、专业的支持。
综上所述,珠海活性炭过滤装置设备生产厂家是一个值得信赖的企业。他们以高质量的产品和优质的服务,使自己成为活性炭过滤装置设备行业的佼佼者,赢得了广大客户的认可和信赖。

附近活性炭过滤器生产厂家有哪些
活性炭过滤器是一种常见的空气净化设备,广泛应用于家庭、办公室、商业场所等各种环境中。它利用活性炭的吸附特性,有效去除空气中的有害气体和异味,提供健康清新的室内空气。对于想要购买活性炭过滤器的人们来说,了解附近的生产厂家是很重要的。
在我们周围的地区,有多家活性炭过滤器生产厂家。以下是其中几个比较知名的厂家:
1. ABC过滤器公司:ABC过滤器公司是一家专业生产活性炭过滤器的公司,拥有多年的经验和专业技术团队。他们提供各种类型和规格的过滤器,可以根据客户的需要进行定制。
2. XYZ过滤器有限公司:XYZ过滤器有限公司是一家起步较早的过滤器生产厂家。他们注重产品的质量和性能,并不断进行技术创新。他们的活性炭过滤器在市场上享有很高的声誉。
3. 123过滤器集团:123过滤器集团是一家大型的过滤器制造商,拥有先进的生产设备和技术。他们的产品种类齐全,从家用到商业用途的过滤器应有尽有。他们还提供优质的售后服务,受到了广大消费者的认可和称赞。
当然,这只是附近几家活性炭过滤器生产厂家的简单介绍。市场上还有很多其他的厂家,可以通过互联网、黄页、口碑等途径进行进一步了解和选择。购买活性炭过滤器时,除了考虑厂家的信誉和产品质量外,也要根据自己的需求和预算进行选择。通过了解附近的活性炭过滤器生产厂家,可以更好地选择合适的产品,提供更好的室内空气质量。
广东鑫邦活性炭有限公司致力专注于柱状活性炭、颗粒活性炭、粉状活性炭、华体会游戏主页 生产与批发;广泛应用在:垃圾焚烧厂、黄金提取、工业废水处理、污水处理、废气处理、空气净化、喷漆烤漆房等 Copyright © 2002-2021 HTH电竞官方下载 版权所有 粤ICP备2021087261号