欢迎来到广东鑫邦活性炭生产厂家!本公司主营各种材质规格的华体会游戏主页 、柱状活性炭、颗粒活性炭、废气处理活性炭等产品。

免费咨询热线
136-1277-7675近年来,我国对环境污染治理加大力度,各种新型的环保技术也得到广泛应用。其中,活性炭吸附有机废气是一种非常有效的方法。
活性炭是一种具有微孔结构的吸附材料,通过物理吸附作用可将有机废气中的有害物质吸附于孔道表面,从而净化空气。相较于传统治理方式,活性炭吸附不需要耗费大量能源和耗材,是一种更加经济环保的方法。
此外,在进行环评时,活性炭吸附有机废气可以提高环境质量,减少污染物排放,降低大气中的有害物质浓度,保护周边环境和人民健康。同时,活性炭具有对多种有机废气具有适应性,可以广泛应用于不同领域的废气治理中。
活性炭吸附有机废气是一种性价比高、环保效益好的废气治理技术,对保护环境和促进可持续发展都具有积极意义。

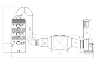
废气活性炭吸附装置是一种常见的环保设备,它的工作原理是利用活性炭吸附物质的特性,将废气中的有害气体、异味等物质吸附下来,从而达到净化空气的目的。
具体而言,废气通入活性炭吸附装置后,废气中的分子会与活性炭表面的活性位点发生化学反应,形成物理吸附或化学吸附,从而被吸附在活性炭上。吸附过程中,若废气中的有害成分充分接触到活性炭表面,它们会逐渐弥散到整个活性炭颗粒内部,从而形成更大的吸附面积,吸附效果更佳。
当活性炭吸附饱和或达到一定的时间,就需要进行再生或更换。再生方式一般采用高温热解,将吸附在活性炭上的有机物分解;更换则是取出活性炭模块,将其更换为新的模块。
废气活性炭吸附装置具有结构简单、操作方便、净化效果好、使用寿命长等优点。因此,在工业、医疗、环保等领域得到广泛应用。

废气吸附活性炭作为一种环保材料,被广泛应用于工业废气治理、室内空气净化等领域。然而,随着使用时间的增加,活性炭的吸附能力会逐渐降低,甚至失去活性,导致废气治理效果不佳。因此,活性炭更换时间非常重要。
一般情况下,活性炭的更换时间与其吸附量、使用条件、废气性质等多种因素有关。在一些工业废气处理中,一般将活性炭的更换时间设置在3~6个月,以保证其良好的吸附作用。而对于家用空气净化器中的活性炭,则建议在使用3~6个月后更换。
当然,实际更换时间还需要根据实际情况来确定。如果废气排放量大、污染物浓度高,活性炭的更换时间可能需要提前。而如果废气排放量较小、污染物浓度低,则可以适当延长活性炭的更换时间。
及时更换废气吸附活性炭,是保证其良好吸附效果的关键。定期检查及更换,不仅可以保障废气治理效果,也能保证人们的健康和生活环境的质量。

活性炭是一种具有高度孔隙的多孔性材料,具有很强的吸附性能,经常被用来去除空气中的挥发性有机化合物(VOC)。VOC是室内空气中的主要污染物之一,其来源包括室内装修材料、清洁剂、香水、化妆品等各种用品。
研究表明,活性炭吸附VOC的效率与其孔径大小、表面积和孔结构等因素密切相关。一些研究表明,粒径在0.5-1mm之间的活性炭可有效地吸附VOC,且对于不同类型的VOC,活性炭的吸附效率也不同。例如,苯和甲苯的吸附效率比丙酮和醇类化合物高。
同时,活性炭的吸附效率还受到一些外部因素的影响。如温度、湿度、气体流动速度等。一般来说,在适宜的条件下,活性炭吸附VOC的效率可以达到90%以上。
活性炭吸附VOC的效率主要取决于其自身的孔径大小、表面积和孔结构等因素,同时也受到外部条件的影响。因此,在实际应用中,需要根据实际情况选择合适的活性炭材料和操作条件,以达到最佳的吸附效果。
广东鑫邦活性炭有限公司致力专注于柱状活性炭、颗粒活性炭、粉状活性炭、华体会游戏主页 生产与批发;广泛应用在:垃圾焚烧厂、黄金提取、工业废水处理、污水处理、废气处理、空气净化、喷漆烤漆房等 Copyright © 2002-2021 HTH电竞官方下载 版权所有 粤ICP备2021087261号