欢迎来到广东鑫邦活性炭生产厂家!本公司主营各种材质规格的华体会游戏主页 、柱状活性炭、颗粒活性炭、废气处理活性炭等产品。

免费咨询热线
136-1277-7675活性炭是一种具有很强吸附能力的吸附剂,广泛应用于污水处理行业。在污水处理过程中,活性炭可吸附多种有机物和无机物,如溶解在水中的有毒有害物质、氯气、氧化剂等,使其得到有效去除。同时,由于活性炭具有很强的物理和化学稳定性,故其经过反复使用和再生后仍能保持较高的吸附能力,有效降低了运行成本。
活性炭在污水处理中的应用有许多,如用于市政污水厂的二次处理、工厂废水处理等。在二次处理中,活性炭常常被装在过滤器中,与空气、草炭等组成生物滤池,通过生物降解和物理吸附的作用,降低COD、BOD、颜色、氨氮等污染物的浓度,达到排放标准。在工厂废水处理中,活性炭的应用涉及到多种行业,如冶金、化工、制药等,可有效去除多种有机物和重金属离子,保障生态环境安全。
活性炭在污水处理领域中具有很强的应用价值和广泛的推广前景,它在净化水体、保护环境、改善人民生活质量等方面发挥了不可替代的作用。

活性炭处理废水是一种常见的废水处理方法,其工艺流程包括预处理、吸附和再生三个阶段。
预处理阶段包括物理和化学处理两种方式,主要是为了去除废水中的杂质、颗粒物和油脂等。物理处理包括过滤和沉淀,化学处理则包括中和、氧化和加药等。
吸附阶段是活性炭处理废水的核心过程,活性炭吸附作用基于其极大的比表面积和多孔性,能够吸附废水中的有机物和重金属离子等污染物。废水通过活性炭层时,污染物被吸附在其表面并得以去除。
再生阶段是重要环节,可以有效地延长活性炭的使用寿命和降低成本。通常采用高温蒸汽气氛再生法和热风再生法,其原理都是利用高温和空气流通使活性炭内部的有机物揮发和燃烧降解,使其重新恢复吸附性能。
综上所述,活性炭处理废水的工艺流程大致包括预处理、吸附和再生三个阶段,该方法具有操作简单、使用方便、成本低廉等优点,被广泛应用于工业废水处理领域。

活性炭是一种微孔结构非常发达的一种碳材料,可以有效地吸附有机物和异味。在污水处理中,活性炭通过吸附、催化和生物降解等作用,可以有效地去除水中的有机物和其他污染物,提高水的质量。
活性炭具有很大的比表面积和孔隙度,能够吸附大量的有机物质和异味物质,包括色素、油脂、杂质、氯气等,有效清除臭味和异味。活性炭可以将污染物分解成无害物质,促进水中有机物的生物降解,提高水的可生化性。此外,活性炭也能够催化水中的化学反应,加速氧化、还原等过程,进一步提高水的水质。
活性炭在污水处理中有很重要的作用,可以有效地净化水体,提高水的质量。在实际应用中,可根据水的不同污染情况,选用不同类型的活性炭进行处理,以达到最佳的净化效果。

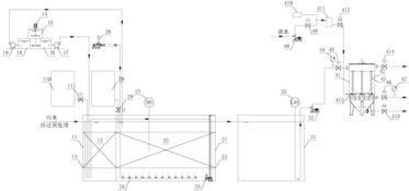
污水活性炭吸附处理装置是一种用于处理污水的设备,通过利用活性炭对污水中的有机物和氯气等有害物质进行吸附,使其达到处理标准。
该装置由污水处理池、活性炭吸附池、反洗水池等组成。污水在进入处理池后,首先进行初步的生化处理,去除部分有机物和悬浮物。然后,污水进入活性炭吸附池,经过活性炭的吸附作用,去除其中的有害物质,并降低水中浊度和氯气含量。将处理后的水进一步进行消毒和除臭,达到出水标准。
污水活性炭吸附处理装置具有投资少、占地少、运行成本低等优点。广泛用于城市污水、工业污水等领域的处理,同时也可以用于纯净水、饮用水的净化。
污水活性炭吸附处理装置是一种高效、经济、环保的污水处理设备,有着广泛的应用前景。
广东鑫邦活性炭有限公司致力专注于柱状活性炭、颗粒活性炭、粉状活性炭、华体会游戏主页 生产与批发;广泛应用在:垃圾焚烧厂、黄金提取、工业废水处理、污水处理、废气处理、空气净化、喷漆烤漆房等 Copyright © 2002-2021 HTH电竞官方下载 版权所有 粤ICP备2021087261号